R3501808 | Residential Plot in El Rosario – € 1,300,000 – 0 beds, 0 baths
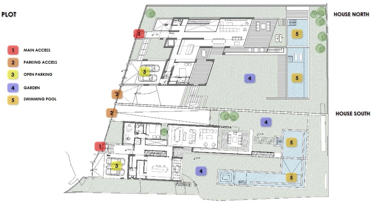
SEA VIEW DEVELOPMENT OPPORTUNITY! Two adjoining development plots of 1200m2 each with panoramic sea views. Full project included with architects plans and planning permission approved to build two contemporary sea view villas (estimated resale value of €2.9M each based upon high spec finish). A prime site for development of 2 new sea view villas in El Rosario.









