R4876468 | Residential Plot in Estepona – € 649,000 – 0 beds, 0 baths
This prime plot of land is perfectly positioned just under 200 meters from Estepona's main beach, nestled in the heart of Estepona's charming old town. All essential amenities, including shops, restaurants, and cafes, are conveniently within walking distance, allowing you to immerse yourself in the vibrant local atmosphere.
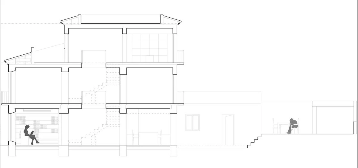
The plot spans 168 m2, providing ample space to construct a spacious family residence of up to 260 m2. The plot is sold with a project and licence in place which includes 4 bedrooms, 4.5 bathrooms, private garden, 2 terraces and space for a gym or office which spans over 3 levels.
The design offers a generous ground floor patio and a sun-filled solarium terrace that enjoys sunshine throughout the day. Upon entering, you'll find an expansive open-plan living room, flowing seamlessly into a dining area and a large, modern kitchen complete with an adjacent pantry. The kitchen opens onto the ground-floor patio with glass curtains, creating a natural indoor-outdoor transition ideal for entertaining. The patio area is thoughtfully designed with split levels, featuring a barbecue area, outdoor dining space, and even a gym, making it a versatile and enjoyable retreat. Additionally, a convenient cloakroom is tucked under the staircase on this floor.
The middle floor is dedicated to comfort, with three spacious double bedrooms, each boasting a private en-suite bathroom and ample room for built-in wardrobes. Two of the bedrooms face the street, adorned with traditional Juliette balconies, while the third overlooks the patio, offering a quieter ambiance. A centrally located TV/library room connects these rooms and provides access to a shared terrace with views of the patio and summer kitchen area.
On the third floor, the luxurious master suite awaits, featuring a large walk-in wardrobe, an en-suite bathroom and access to a private solarium terrace. This terrace captures abundant sunlight throughout the day, offering a serene lounging space with scenic views of Estepona's old town.
Estepona is one of the most desirable destinations on the Costa del Sol, known for its traditional Andalusian charm, bustling old town, and pristine beaches. With a blend of modern amenities and classic Mediterranean allure, Estepona offers an inviting lifestyle enriched by vibrant local culture, colorful flower-adorned streets, and a wide selection of restaurants, boutiques, and artisan shops. The town is just a 50-minute drive from Malaga Airport, ensuring convenient international connectivity. Estepona is also located a mere 20 minutes from the glamorous town of Marbella, known for its luxury boutiques, fine dining, and lively nightlife. For golf enthusiasts, Estepona is an ideal base, with an array of world-class golf courses nearby, including the renowned Finca Cortesin, Valle Romano, and Estepona Golf, all within a short drive. This combination of accessibility, local charm, and leisure options makes Estepona a coveted choice for those seeking a refined and relaxed lifestyle by the Mediterranean.





