R5046775 | Residential Plot in Los Monteros – € 690,000 – 3 beds, 2 baths
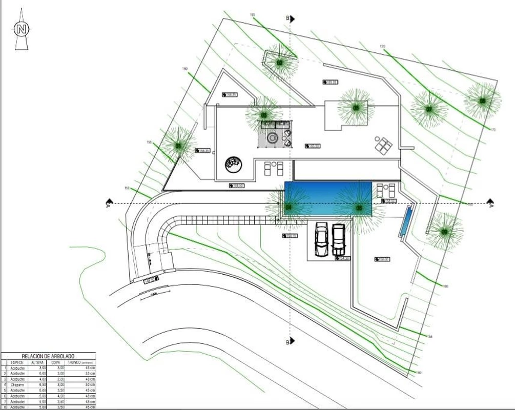
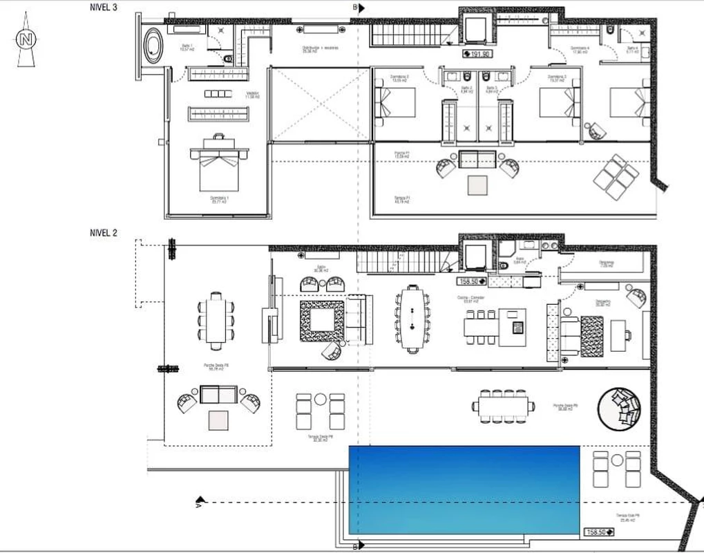
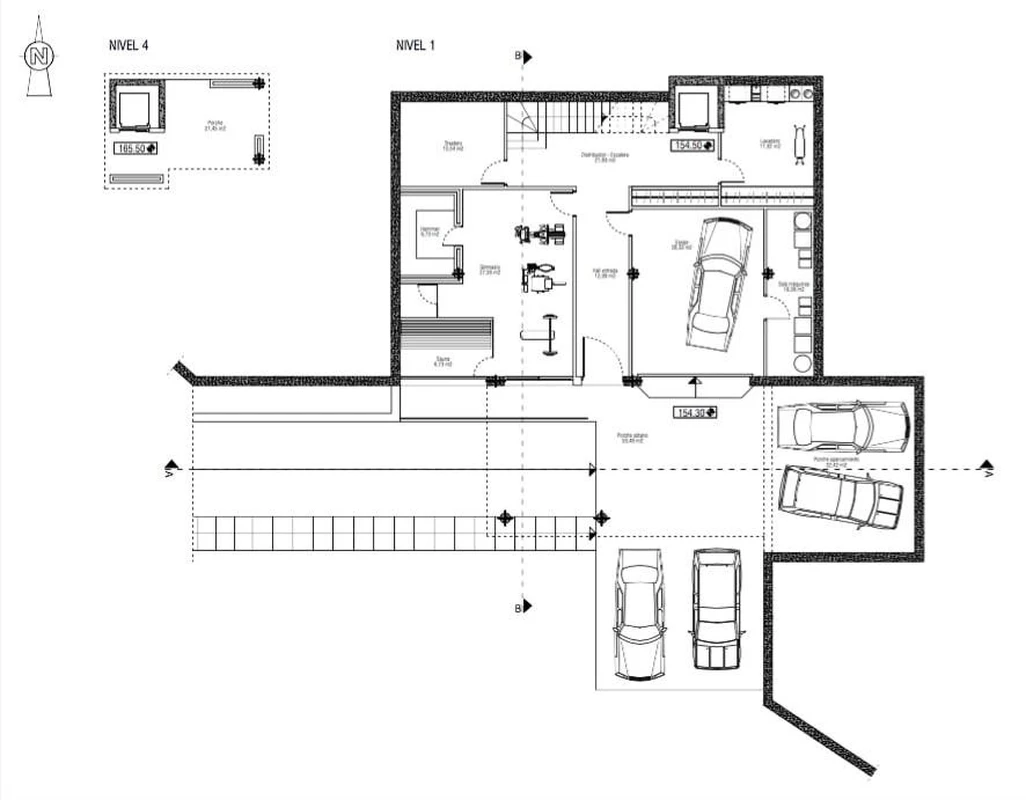
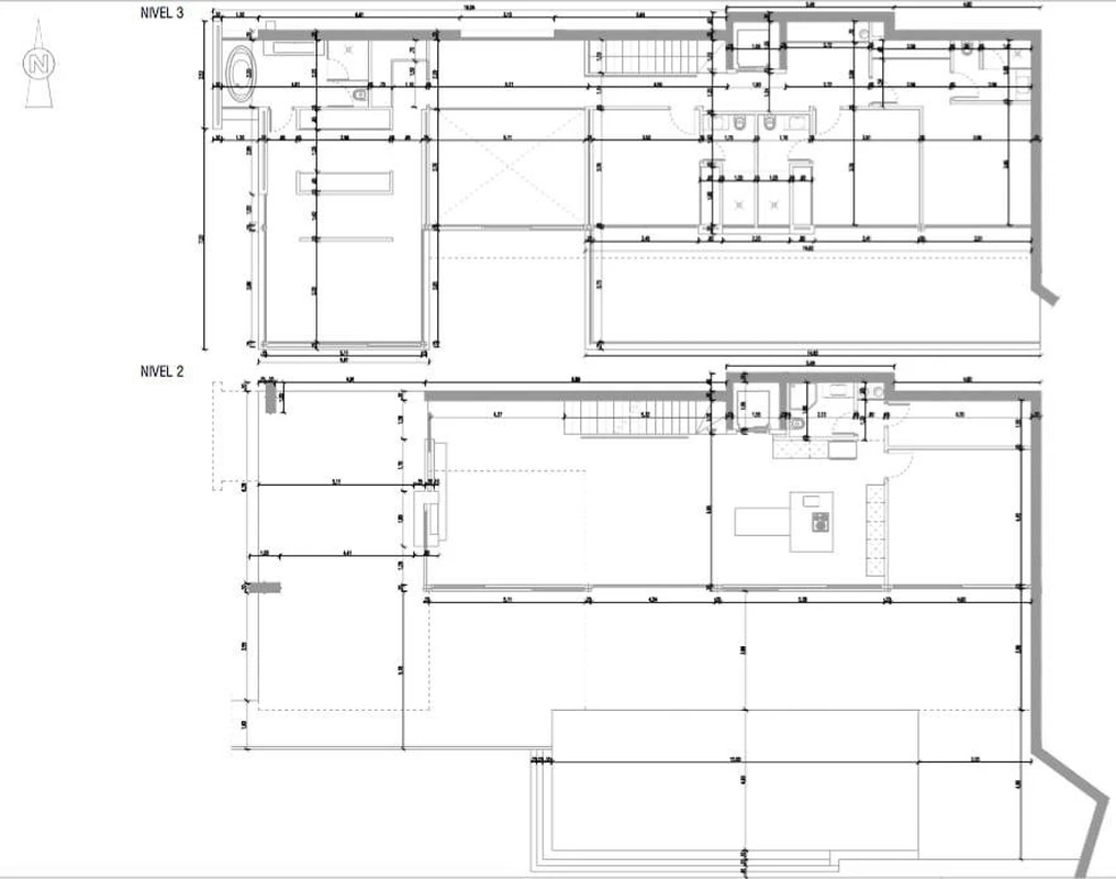
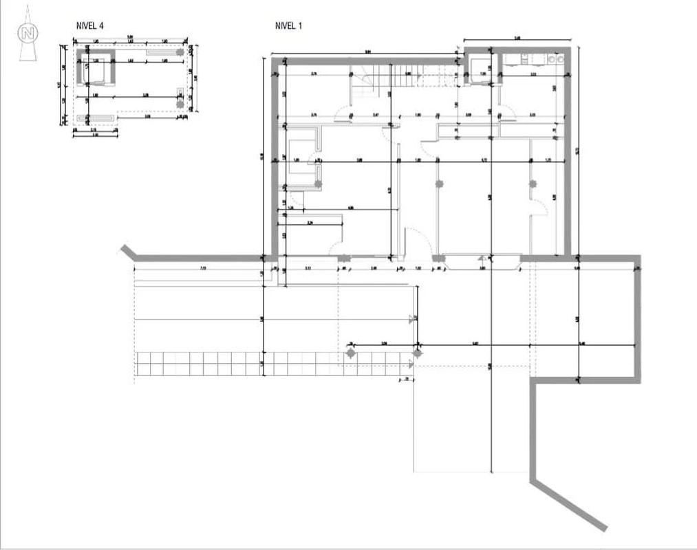
Land for sale in LOS ALTOS DE LOS MONTEROS urbanization, MARBELLA (MÁLAGA) with unobstructed views of the sea along with an attractive 4-storey single-family housing project, the building permit has been issued. The construction project is included in the price. The construction project has 5 parking spaces, 3 in the garage and 2 for visits with sea views. In the basement we have a large panoramic sauna (sea views), gym and Turkish bath. Large storage room, laundry room and staircase that connects the 4 floors and elevator. On the ground floor, a spacious living room with double height and led fireplace, kitchen with American island, large pantry, guest bathroom and office. On the second floor 4 bedrooms each with bathroom, the master room with walking closet and bathtub with sea views., closets in the hallway. On the top floor, a large solar where you can place barbecue and rest facilities. It has 3 gardens, each one can be thematic.
Use: Residential
Subtype: Urban Land
Area: 1,509 m²
Buildable area: 458 m²







